Andalucía, Benahavís
3 695 000 €
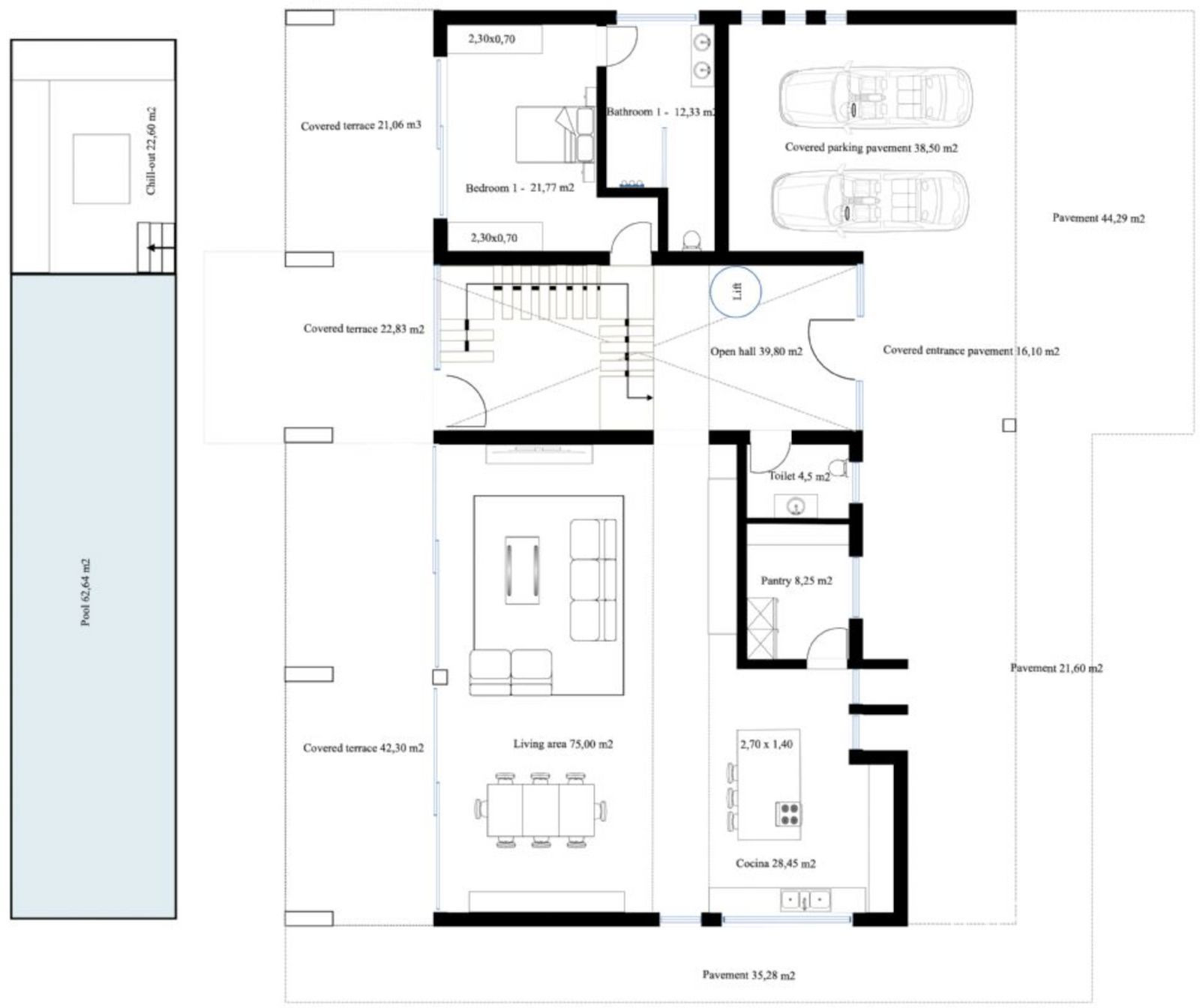
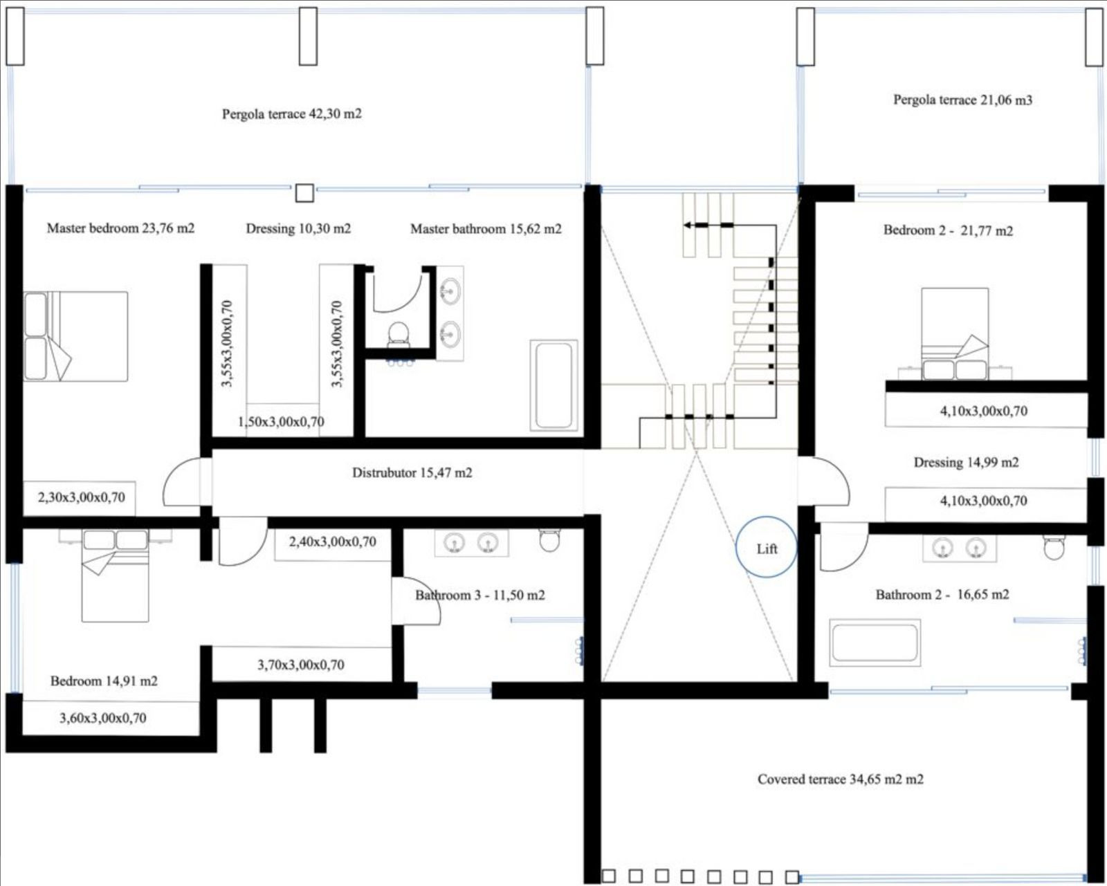
LUXUSNÍ SOUČASNÁ EKOLOGICKÁ VILA S PANORAMATICKÝM VÝHLEDEM V MONTE MAYOR - BENAHAVIS - Celkem postavena na 3 podlažích o celkové zastavěné ploše 1.334,00 m2 Tato moderní luxusní vila má prostě všechno ... bude postavena ve 2 nebo 3 podlažích, dle výběru klienta, na pozemku o rozloze cca 7.825 m2 v Monte Mayor, Benahavis luxusní urbanizaci v zelené oblasti. Přízemí: hala s dvojitou výškou, schodištěm, pneumatickým výtahem a toaletou pro hosty, velký obývací pokoj/jídelna s výstupem na velkou terasu s bazénem a odpočinkovou zónou, plně vybavená kuchyň se spíží. V přízemí je také ložnice s vlastní koupelnou. První patro: V tomto patře máme také další 2 ložnice s vlastním sociálním zařízením a šatnou. Jedna z ložnic má přístup na terasu. Suterén; hala, garáž, toaleta, sauna, herna, sklad a technická místnost s bazénem. Doba výstavby 12-14 měsíců po získání licencí! Fotografie koupelen a kuchyní jsou příklady, jak bychom to pro vás mohli postavit, konečné rozhodnutí bude na vás. Příklad některých specifikací, - Vnitřní a venkovní dlažba GRESPANIA 600x600 - 800x800 - 1200x1200 (barvu a rozměr si můžete vybrat). - Stěny koupelny s deskami COVERLAM (GRESPANIA) 2700X1200 (Barvu si můžete vybrat) - Koupelny od firmy ROCA nebo podobné - Kuchyňská linka s ocelovými rámovými dvířky obloženými COVERLAMEM a kuchyňským ostrůvkem z COVERLAMU. - Aerotermie/klimatizace - Podlahové elektrické vytápění v koupelnách - Podlahové hydraulické vytápění v přízemí a prvním patře - Okna s vysokým stropem a zapuštěnou kolejnicí, 5+5/komora/6+6 - Stropní vysoké a 1 metr široké vnitřní dveře - Stropní vysoké otočné dveře a šířka 1,50 - Plně vybavená kuchyňská linka - Domácí spotřebiče Bosch nebo podobné - 20 solárních panelů - 2 X 10kW baterie - Nabíječka do auta - Domotica - Elektrické sluneční žaluzie v obývacím pokoji a kuchyni - Venkovní osvětlení od soumraku do úsvitu - LED světla na příjezdové cestě - LED stropní světla v celé vile - Vyhřívaný bazén Volitelně - Kompletní kuchyně od společnosti COVERLAM s hliníkovými rámovými dveřmi (cena na vyžádání) - Kompletní suterén/garáž/herna, další ložnice a koupelna (cena na vyžádání) Jsme stavební společnost Key-in-Hand, která dokáže navrhnout a postavit jakoukoli možnost, na kterou si vzpomenete. Pokud u nás nevidíte návrh, který by se vám líbil, navrhneme pro vás zcela novou vilu podle vašich představ a vstupů. Ačkoli dáváme přednost ekologickým stavbám, můžeme stavět od tradičních staveb až po ekologické stavby, vše záleží na vás. V CENĚ - Pozemek - Základní a technický projekt architekta - Stavební povolení - Kompletní výstavba
















